Table of Contents
Plans have been submitted to convert historic stables in West Kirby into a house.
Rectory Road stables on Rectory Road are owned by the Diocese of Chester.
The buildings date from the early 19th century, and are located in a conservation area.
It is proposed to retain the stables but demolish two outbuildings.

The buildings affected. Photo credit: Fisher German
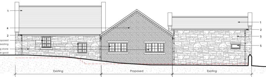
A heritage impact assessment prepared by Fisher German on behalf of the Diocese of Chester, states: "The proposal seeks to convert the existing traditional sandstone buildings whilst demolishing the modern stabling additions, to create a new-build element to the dwelling.
"The proposal will enable the retention of the buildings within the Conservation Area and allow for the required necessary improvement works to the two traditional buildings and create a new viable future use for these going forward.
It adds: "The proposed ‘extension’ or new build element of the proposal will provide a substantial enhancement to the site and the local area.
"The design and materials are in-keeping with the local vernacular and proposed to be of a heritage blend brick and new stone cills to match existing."
The application proposes repairing and retaining the boundary walls.

Artists impression of the proposals. Photo credit: Fisher German
It concludes: "The proposed new addition to the buildings will allow an architectural enhancement and provide a structure which is in-keeping to the rural setting and character of Rectory Road.
"The materials have been chosen sensitively recognising the existing traditional buildings and importance of heritage and conservation.
"Conversion and re-use of these buildings into a residential dwelling will allow for these buildings to be repaired and enhanced to a high standard so can be retained for future generations to appreciate."
In 2019, West Kirby Today revealed the land was the subject of a controversial proposal for a 64-bedroom, specialist care home, but it was never progressed.
The application can be viewed at https://online.wirral.gov.uk/planning/index.html?fa=getApplication&id=229670.